
- ., Vysoké Tatry,
Ulica: | . |
---|---|
Obec: | Vysoké Tatry |
Okres: | Poprad |
Kraj: | Prešovský kraj |
Druh: | Byty |
Typ: | Predaj |
Typ bytu: | Rekreačný apartmán |
Celú ponuku chaletov nájdete na: www.chaletytatry.sk
Video z lokality si môžete pozrieť tu: https://youtube.com/shorts/MoLSaEpeoEI
HT reality ponúka na predaj 4 izbový „Chalet Grandview C“ v chaletovom trojdome, Vysoké Tatry - Stará Lesná, s 2 kúpeľňami, pozemkom o celkovej výmere cca 225 m2 a s exkluzívnym výhľadom na Vysoké Tatry a lyžiarske stredisko v Tatranskej Lomnici.
Chalet bude vyhotovený v najvyššom štandarde, ktorý zahŕňa:
- hliníkové okná s tepelným 3sklom,
- fasáda: kartáčové termo drevo v kombinácii s prírodným kameňom,
- kefované drevo na strope podľa interiérových vizualizácií,
- sklené zábradlie,
- rekuperácia vzduchu,
- inteligentný dom pomocou smart technógie.
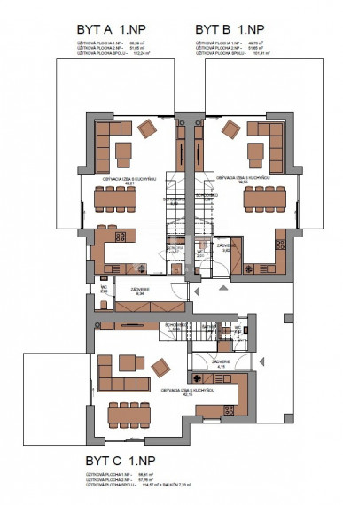
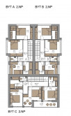
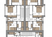
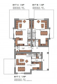
Chalet C s celkovou úžitkovou plochou 121,9 m2 dispozične pozostáva:
- 1NP: zádverie (4,15 m2), WC (2,32 m2), priestranná obývačka prepojená s kuchyňou (42,15 m2), z ktorej sa naskytá panoramatický pohľad na štíty Vysokých Tatier , šatník pod schodiskom (2,60 ) a schodisko (5,59 m2)- spolu 56,81 m2
- 2NP: chodba (8,34 m2) odkiaľ sú prístupné 2 kúpeľne (4,48 m2 a 6,83m2), samostatné WC (1,72 m2) a 3 izby (11,17 m2, 11,33 m2 a 13,89 m2). Z dvoch izieb je východ na priestranný 7,33 m2 balkón- spolu 65,09 m2
PODORYS NÁJDETE V PRILOŽENEJ FOTODOKUMENTÁCII.
Cena Chaletu v štádiu „holodom“ je 374.000 €.
Popis použitých materiálov a stavu „holodom“:
- tehla 25 cm, zateplenie 20 cm EPS, spoločná stena zdvojená 2 x 25 cm + 5 cm izolácia EPS, hliníkové okná 3 sklá, strecha: betónová škridla Bramac so zateplením, energeticky šetrné infra elektrické podlahové kúrenie individuálnym ovládaním každej miestnosti na diaľku pomocou smartfónu, (možnosť tepelného čerpadla), príprava na krb- komín, rekuperácia vzduchu, komplet rozvody vody a elektriny ukončené zásuvkami a vypínačmi, steny s omietkou, kefované drevo na strope podľa interiérových vizualizácií, zásobník na TUV, podlahy budú ukončené poterom pripraveným na nášľapné vrstvy. Exteriérovo bude dom dokončený s fasádou v zmysle vizualizácie (kartáčové drevo + kameň), s oplotením pozemku a vydláždenými parkovacími miestami pred domom na 2 autá.
V prípade záujmu ponúkame možnosť dokončenia "na kľúč" podľa individuálnych požiadaviek klienta.
Chalet bude kolaudovaný ako rodinný dom s 3 bytovými jednotkami v energetickej triede A0. Je možné zriadiť v ňom trvalý pobyt a kúpu financovať cez hypotekárny úver.