Používame cookies

Súbory cookie a ďalšie technológie sledovania používame na zlepšenie vášho zážitku z prehliadania našich webových stránok, na to, aby sme vám zobrazovali prispôsobený obsah a cielené reklamy, na analýzu návštevnosti našich webových stránok a na pochopenie toho, odkiaľ naši návštevníci prichádzajú. Viac info

 

4 izbový „Chalet Grandview B“ s 2 kúpeľňami v Starej Lesnej a exkluzívnym výhľadom na Vysoké Tatry

Ulica: .
Obec: Vysoké Tatry
Okres: Poprad
Kraj: Prešovský kraj
Druh: Byty
Typ: Predaj
Typ bytu: Rekreačný apartmán
391 000 €

Popis nehnuteľnosti

Celú ponuku chaletov nájdete na: www.chaletytatry.sk

Video z lokality si môžete pozrieť tu: https://youtube.com/shorts/MoLSaEpeoEI

HT reality ponúka na predaj 4 izbový „Chalet Grandview B“ v chaletovom trojdome, s 2 kúpeľňami, pozemkom o celkovej výmere cca 230 m2 a s exkluzívnym výhľadom na Vysoké Tatry a lyžiarske stredisko v Tatranskej Lomnici.

Chalet bude vyhotovený vo vyššom štandarde, ktorý zahŕňa: 

- hliníkové okná s tepelným 3sklom, 

- fasáda: kartáčové termo drevo v kombinácii s prírodným kameňom,

- kefované drevo na strope podľa interiérových vizualizácií

- sklené zábradlie,

- rekuperácia vzduchu, 

- inteligentný dom pomocou smart technógie. 

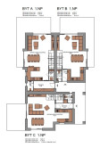
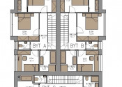
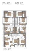
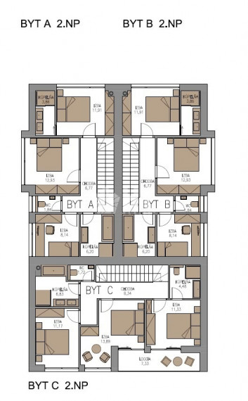
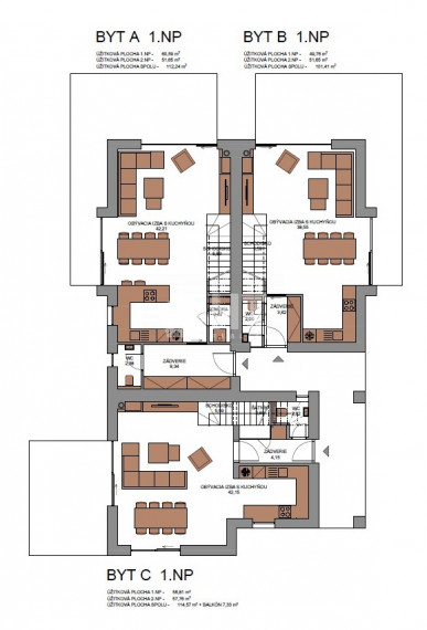
Chalet B s úžitkovou plochou 101,41 m2 dispozične pozostáva:

 - 1NP: zádverie (3,62 m2), WC (2 m2), priestranná obývačka prepojená s kuchyňou (38,55 m2), z ktorej sa naskytá panoramatický pohľad na štíty Vysokých Tatier a schodisko (5,59 m2)- spolu 49,96 m2

- 2NP: chodba (6,77 m2) odkiaľ sú prístupné 2 izby (12,93 m2 a 8,14 m2), kúpeľňa (6,2 m2), samostatné WC (1,84 m2) a rodičovská spálňa (11,91 m2) s vlastnou kúpeľňou (3,86 m2)- spolu 51,65 m2

PODORYS NÁJDETE V PRILOŽENEJ FOTODOKUMENTÁCII.

Popis použitých materiálov a stavu „holodom“:

- tehla 25 cm, zateplenie 20 cm EPS, spoločná stena zdvojená  2 x 25 cm + 5 cm izolácia EPS, hliníkové okná 3 sklá, strecha: betónová škridla Bramac so zateplením, energeticky šetrné infra elektrické podlahové kúrenie  individuálnym ovládaním každej miestnosti na diaľku pomocou smartfónu, (možnosť tepelného čerpadla), príprava na krb- komín, rekuperácia vzduchu, komplet rozvody vody a elektriny ukončené zásuvkami a vypínačmi, steny s omietkou, kefované drevo na strope podľa interiérových vizualizácií, zásobník na TUV, podlahy budú ukončené poterom pripraveným na nášľapné vrstvy. Exteriérovo bude dom dokončený s fasádou v zmysle vizualizácie (kartáčové drevo + kameň), s oplotením pozemku a vydláždenými parkovacími miestami pred domom na 2 autá.

V prípade záujmu ponúkame možnosť dokončenia "na kľúč" podľa individuálnych požiadaviek klienta.

Chalet bude kolaudovaný ako rodinný dom s 3 bytovými jednotkami v energetickej triede A0. Je možné zriadiť v ňom trvalý pobyt a kúpu financovať cez hypotekárny úver.

Vlastnosti

Status:
aktívne
Vlastníctvo:
firemné
Stav:
novostavba
Celková plocha:
101 m2
Úžitková plocha:
101 m2
Energetický certifikát:
A
Materiál:
tehla
Status:
aktívne
Vlastníctvo:
firemné
Stav:
novostavba
Celková plocha:
101 m2
Úžitková plocha:
101 m2
Energetický certifikát:
A
Materiál:
tehla

Informatívna úverová kalkulačka

Pozrieť na mape

Maklér

Mgr. Pavol Tahotný

Mgr. Pavol Tahotný

  • Slovensky
  • English
  • Česky

Radi Vám poradíme

Podobné nehnuteľnosti